Murativo Design 3D
Collaborazioni di Eccellenza:
JOB1 srls e Murativo Srl
Benvenuti in Murativo Design, il punto di riferimento per chi cerca eccellenza e raffinatezza nell’arte della progettazione. In collaborazione con JOB1 srls, portiamo avanti progetti che rappresentano la massima espressione di lusso, prestigio e innovazione.
Grazie alla sinergia tra le nostre competenze, offriamo soluzioni su misura che soddisfano i desideri più esigenti. Una visione architettonica che fonde design contempo-raneo e tradizione, creiamo spazi abitativi e commerciali che ridefiniscono l’idea di comfort, stile e funzionalità.
PROGETTAZIONE

Progetto di Partenza
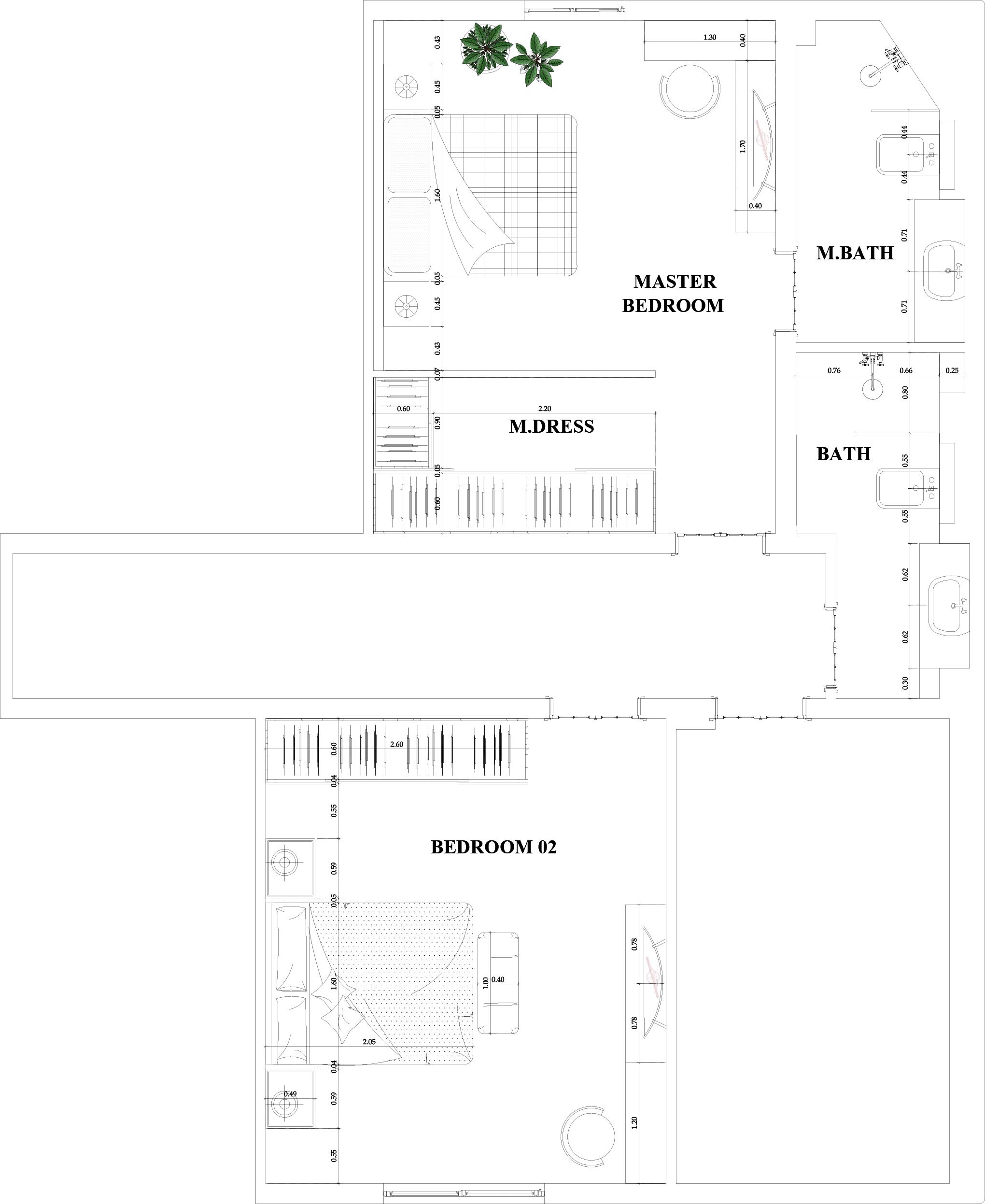
Dopo il sopralluogo iniziale effettuato dal nostro esperto tecnico, inizia il viaggio verso la realizzazione del progetto dei tuoi sogni.
Quando siamo stati contattati dal cliente, la sua esigenza principale era chiara: creare un secondo bagno e sfruttare al massimo lo spazio disponibile, poiché la casa, pur essendo accogliente, ha una metratura ridotta. Questo progetto ha richiesto un’attenta pianificazione e una visione creativa per massimizzare ogni centimetro, senza compromettere il comfort o lo stile degli ambienti.

Progetto Modificato
Ottimizzazione degli Spazi: A Murativo Edilizia & Design, ogni progetto è un’opera d’arte in costante evoluzione.
Come si può vedere dalla mappa modificata, abbiamo completamente rivisto la disposizione degli ambienti, ottimizzando ogni angolo della casa. Lo spazio destinato al secondo bagno è stato ricavato ridistribuendo alcune aree meno funzionali della casa, senza influire negativamente sulla fluidità della pianta. Il risultato finale è una disposizione ottimizzata che offre maggiore praticità e un miglior flusso tra gli spazi, pur mantenendo l’armonia estetica complessiva.
Creazione di Due Bagni e Soluzione per la Biancheria
Per rispondere alle esigenze del cliente, abbiamo riorganizzato lo spazio allungando il bagno esistente verso il corridoio e dividendolo in due ambienti separati:
- Primo bagno: Accessibile dal corridoio, pensato per gli ospiti, con sanitari compatti e una doccia, ottimizzando lo spazio senza compromessi.
- Secondo bagno: Con accesso privato dalla camera da letto, offre maggiore intimità con una doccia walk-in e arredi eleganti.
Soluzione per la Biancheria
Abbiamo integrato un sistema estensibile per la biancheria, sfruttando lo spazio rimanente in modo pratico e discreto, come previsto dal progetto.